Nieuwbouw Notariswoning te Badhoevedorp
Via Architektenburo Guido Bakker hebben wij opdracht gekregen voor de nieuwbouw van een prachtige Notariswoning in Badhoevedorp! Mooie details, authentieke uitstraling. Start bouw najaar 2017.
Via Architektenburo Guido Bakker hebben wij opdracht gekregen voor de nieuwbouw van een prachtige Notariswoning in Badhoevedorp! Mooie details, authentieke uitstraling. Start bouw najaar 2017.
Daar is 'ie dan! Oasis Beach is uit de steigers! De buitenkozijnen zitten er in. Laatste hand buitenom: de balkonhekwerken. Nu de binnenafwerking nog gereed maken en dan richting opleveringen....
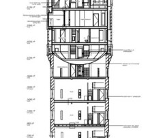
De prachtige monumentale Watertoren in Utrecht krijgt een herbestemming. In samenwerking met ZECC Architecten worden er onder en in het buffervat woningen/studio's gerealiseerd. Het karakter van de toren (wat immers [...]
Van deze schitterende woning in Kempische stijl is de werkvoorbereiding gestart. Oplevering staat gepland voor december 2017. De woning wordt voorzien van een kelder. Het gevelmetselwerk wordt opgetrokken in het [...]